Loop Tectonics: Designing Against Demolition_박신우_서울대학교

person 남태현 calendar_today 2025년 08월 13일 visibility 2,266

alt text

[ 건축개요 ]

① 프로젝트 명칭 : Loop Tectonics: Designing Against Demolition

② 용도 : 레지던시

③ 대상지 : 서울시 금천구 독산동


Q1. 인터뷰에 응해주셔서 감사합니다. 기사를 읽는 분들을 위해, 간단한 자기소개 부탁드립니다. 😀

A1. 초대해주셔서 감사드려요. 박신우라고 합니다. 환경, 미학, 기술에 관심을 갖고 다양한 매체로 건축 작업을 이어가고 있습니다. 올해 서울대학교 건축전에서 대상을 수상했습니다.


Q2. 프로젝트에 대한 소개를 해주실 수 있나요?

A2. 서울에서 쉽게 버려지는 건자재를 다시 쓰는 방식, 그리고 그 방식을 거쳐 나온 건축만의 고유한 느낌이 있음을 주장하는 프로젝트였습니다. 작년부터 같은 주제로 설계, 전시, 연구, 기고 등을 이어오고 있습니다.

서울은 어느 도시보다도 빨리 짓고 부수는데 익숙하면서도, 정작 그 많은 공사에 필요한 건자재를 글로벌 공급망에 의탁하는 건설산업 구조를 가지고 있습니다. 지난 세기 효율적으로 작동해온 이 구조는 그러나 최근의 국제정세 급변에 따라 특정 자재 값이 널뛰며 서울의 건축 프로젝트들이 무산되는 식으로 그 취약성을 드러내고 있습니다. 이렇듯 우리 건축산업이 딛고 선 하부구조의 지속 불가능함에 대해 건축가들이 발언해야 한다는 것이 작업의 출발점이었습니다.

폐 건자재를 다시 쓰는 건축은 이러한 상황에서 건축가 개인이 실천할 수 있는 실리적인 생존전략일 수 있다고 생각했습니다.

또 불안정한 공급망에서 벗어나 내수를 진작시킬 수 있고, 탄소중립에 기여한다는 점 역시 분명하고요. 요약하면 순환경제 체제로의 이행이 어떤 새로운 건축미학을 열어줄 것이며, 그것을 가능하게 하는 구축의 프로세스를 제안하는 것이 저의 주제였다고 할 수 있습니다.

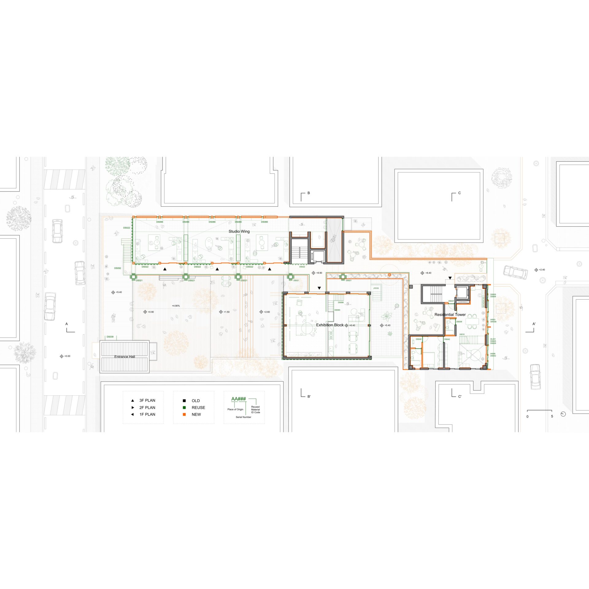
대상지는 금천구 독산역 인근이었습니다. 낙후된 소규모 공장과 저층주거가 뒤섞인 곳입니다. 2026년부터 서울시의 도시재생사업으로 인해 일대에 많은 철거공사가 예정되어 있는데요, 이 시점에서 버려지는 자재를 회수해 본 프로젝트에 활용하는 상황을 가정했습니다. 전시를 통해 강조하고자 했던 내용은 정확한 치수를 알기 어려운 폐자재를 다시 체결해 쓸 수 있는 구체적인 방법과, 그것으로부터 창발하는 새로운 공간적 분위기를 제안하는 것이었습니다. 해당 내용은 사진으로 대체하겠습니다.

alt text

alt text

alt text

alt text


Q3. 해당 프로젝트를 준비하시면서, 가장 노력을 많이 했었던 부분이 있으신가요?

A3. 건축뿐만 아니라 어느 장르의 전시든, 순간의 첫인상으로 작품에 대한 평가가 결정된다고 생각합니다. 작업의 서사 구조를 단번에 명쾌히 전달하는 것이 중요했고, 이야기를 푸는데 적합한 매체를 신중하게 골라야 했습니다. 물론 이것의 전제는 설계가 완벽하게 준비되어 있어야 한다는 것입니다.

이렇게 생각하면 도면, 투시도, 다이어그램 등 건축의 전통적인 매체가 정답이 아닐 수 있습니다.

저의 경우 설계 결과물만큼이나 프로젝트의 현장성, 물리적인 작동과정이 강조되어야 했기에 리서치 자체를 전시하는 아티스틱 리서치의 다양한 방법을 응용했습니다. 노상의 폐자재 사진을 색지에 인쇄해 손으로 색칠하고 압정으로 누르는 방식이나, GIF 형태로 폐자재 정보를 속도감 있게 전달하는 방식이 여기에 해당합니다. 같은 내용을 통상적인 건축 다이어그램으로 표현했다면 전달력이 떨어지지 않았을까 합니다.

전시디자인 관점에서도 재미있는 실험이 있었습니다. 전시대를 둘로 분리했는데, 하나는 철제 프레임을 통상적인 방식으로 쌓은 뒤 본모형과 도면을 설치했습니다. 다른 하나는 철제 프레임을 눕혀 3층으로 쌓고, 이것을 어슷하게 돌려 전시장 통로 축과 일치시켰습니다. 그리고 각 프레임 속에 3개의 디테일 모형을 넣었습니다.

결과적으로 전시 설치만으로도 ‘건축설계와 디테일이 대등하게 중요한 프로젝트’라는 메시지를 직관적으로 전할 수 있게 되었습니다. 전시장 모퉁이라는 불리한 조건을 오히려 내러티브의 일부분으로 활용한 경우입니다.

alt text

alt text

alt text


Q4. 한해가 지나고, 또 새로운 해를 시작되면서, 많은 학생분들이 졸업설계와 프로젝트들을 고민하시고 있을 것 같아요.

인터뷰를 마치며, 앞으로 다양한 건축 프로젝트를 준비하는 후배님들께도 한마디 부탁드립니다!

A4. 졸업설계에 대한 조언이라기보다는, 비슷한 시기를 함께 헤쳐가는 동료로서 학부시절 중요하게 고민해온 점들을 나누고 싶습니다.

첫째는 맥락화에 대한 고민입니다. 저는 제가 구사하려는 건축이 앞 세대의 누구로부터 영향을 받은 것이고, 오늘날의 씬에서는 어느 위치에 있는 것인지 늘 정확히 설명하려 애씁니다. 내 건축이 왜 지금 서울에서 유효한지, 그것이 취리히, 보스턴, 도쿄의 건축과는 어떻게 다른지. 계속해서 되묻고, 의식적으로 이야기합시다. 이런 고민 끝에 나온 건축은 아무리 시각적으로 어설퍼도 장기적으로 담론의 중심이 될 수 있다고 생각합니다.

둘째는 외로움입니다. 건축인들끼리의 연대는 중요하지만, 가끔은 그것이 불필요하게 잦고 영양가가 없다는 생각을 합니다. 건축 밖으로 나아가 내 건축을 찾고 돌아오는 과정이 저에게는 더 중요했습니다. 저는 3~4학년 때 설계 수업을 쉬고 미술이론 공부와 실무를 했습니다. 돌이켜보면 이때 익힌 지식이 오히려 건축에 대한 이해를 높이는 데 도움이 되었습니다. 5년제 교육을 받으며 나도 모르는 틈에 흡수해버린 건축의 불문율, 집단무의식 속에 비합리적인 부분은 없는지 각자 되짚어보고, 필요하면 깨고 나옵시다.

마지막으로 우리 스스로를 우습게 보지 말자는 점을 강조하고 싶습니다. 많은 해외 실무자들, 학생들과 교류하며 느낀 점은 한국 학생들의 툴을 다루는 실력, 레퍼런스에 대한 이해도는 이미 최고 수준이라는 것이었습니다. 결국 새로운 세대의 성장을 가로막는 요인은 ‘어차피 한국에서는 안 돼’ 같은 패배감, 냉소주의가 이어지는 것에 있다고 느낍니다. 사정이 어렵더라도, 각자 소신을 지키며 또렷하게 움직이는 태도에서 새로운 건축이 나올 수 있다고 생각합니다.

더 이야기를 나누고 싶은 분들을 위해 연락처를 남깁니다.

@xxynu

josegarcia@snu.ac.kr